Sääse tn 14, Mustamäe
- Arhiiv
Info
-
Hind Arhiiv
-
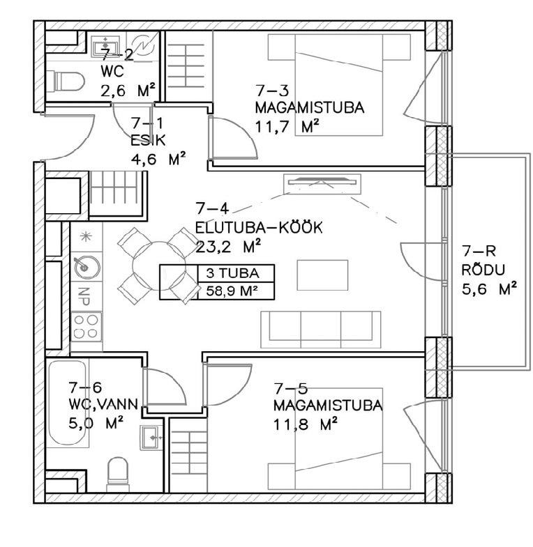
Pindala 58,5 m²
-
Tube 3
-
Vannitube 2
-
Parkimiskoht 1
-
Ehitusaasta 2019
-
Tüüp Korter
-
Staatus Arhiiv
-
Küte keskküte
-
Pliit induktsioonpliit
-
Korrus 3
-
Korruseid 10
-
Hoone materjal Kivimaja
-
Omandivorm Korteriomand
Aadress
Ava Google Maps-
Aadress: Sääse tn 14
-
Linn: Tallinn
-
Maakond: Harju maakond
-
Postiindeks: 12918
-
Linnaosa: Mustamäe
-
Riik: Eesti
Kirjeldus
KORTER
Müüa avar ja valgusküllane 3 toaline korter. Uutel kodudel on suured aknad ning hoolikalt läbimõeldud planeering, et kodus oleks ruumi asjadele ning hea olla igal pereliikmel. Korteri koosseisu kuuluvad: avatud köögiga elutuba, 2 magamistuba, tualett-vannituba, tualett, esik ja rõdu. 1 parkimiskoht maa-aluses parklas on ka hinna sees. Olemas kehtiv hindamisakt.
SISEVIIMISTLUS
Korteri siseviimistlus on lahendatud heledates toonides, kõik seinad on värvitud. Elutoa ja magamistubade põrandaid katab naturaalne puitparkett ning esiku põrand on plaaditud. Vannitoad on heledates toonides, viimistletud keraamilise plaadiga.
KÜTE
Elutoas ja magamistubades on reguleeritavad radiaatorküttesüsteemid ja vannitubades on elektripõrandaküte. Korteris on soojustagastusega ventilatsioonisüsteem, mis hoiab kulud mõistlikud
KORTERISSE JÄÄB
Elutuba: köögimööbel kogu eluks vajaliku tehnikaga (külmkapp Electrolux, induktsioonpliit Electrolux, ahi AEG, kubu ja nõudepesumasin Electrolux).
Kahes magamistoas sisseehitatud mahukad garderoobikapid.
Esik: sisseehitatud riidekapp.
MAJA/ASUKOHT
Maja on ehitatud 2019. aastal. Energiamärgis C. Fonolukk videokaameraga. Maja kõrval on laste mänguväljak. Lähedal Mustamäe keskus, kus leiad mitmed poed, kaasaegse kino, jõusaali ja erinevad söögikoha. Kerge jalutuskäigu kaugusel on ühistranspordipeatused, hea ühendus südalinna ja muude linnaosadega.
LISAINFO
Rõdu 5,6 m² (pääsuga avatud köök-elutoast)
Sundventilatsioon
Kolmekordsed pakettaknad
Suur lift
Väga soe korter
Helistage ja lähme tutvuma uue koduga!
КВАРТИРА
Продаётся в новом доме красивая и просторная 3 комнатная квартира. Идеальная планировка, которую оценит вся семья! В квартире есть: гостиная с открытой кухней и выходом на балкон, 2 спальни, ванная комната с туалетом, второй туалет и прихожая. Также в цене парковочное место в подземном гараже. Есть действующий оценочный акт.
ВНУТРЕННЯЯ ОТДЕЛКА
Интерьер квартиры выполнен в светлых тонах, все стены окрашены.
Полы в гостиной и спальне покрыты натуральным деревянным паркетом, а пол в прихожей выложен плиткой. Ванные комнаты в светлых тонах, отделаны керамической плиткой.
ОТОПЛЕНИЕ
В гостиной и спальнях установлены батарей с регулятором тепла, а в ванных комнатах полы с электрическим подогревом. В квартире есть система вентиляции с рекуперацией тепла, что позволяет снизить затраты.
В КВАРТИРЕ ОСТАЁТСЯ
Кухня: кухонная мебель с техникой (холодильник Electrolux, индукционная плита Electrolux, духовая печь AEG с функцией самоочистки, вытяжка и посудомоечная машина Electrolux).
В обоих спальных комнатах встроенный шкаф-купе.
Прихожая: встроенный шкаф.
ДОМ/РАСПОЛОЖЕНИЕ
Дом построен в 2019 году. Энергоэффективность дома C. Установлен домофон с камерой, а также есть видеонаблюдение. Дом имеет очень хорошее расположение для семьи с детьми. Возле дома детская игровая площадка. Рядом торгово-развлекательный центр Mustamäe, где есть кинотеатр, спортзал, магазины и рестораны. В шаговой доступности остановки общественного транспорта, хорошее сообщение с центром и другими районами города.
ДОПОЛНИТЕЛЬНАЯ ИНФОРМАЦИЯ
Балкон 5,6 m² (выход из гостиной)
Принудительная вентиляция с рекуперацией тепла
Тройной стеклопакет
Большой лифт
Очень тёплая квартира
Звоните и приходите скорее знакомиться с новым домом!
Video
Energiamärgis
-
Energiamärgis: C
- A
- B
- | Energy class CC
- D
- E
- F
- G
- H
