Heki tee 12/1, Haabneeme alevik
- 230,000€
Heki tee 12/1, Haabneeme alevik
- 230,000€
Info
-
Hind 230,000€
-
Pindala 64.1 m²
-
Tube 3
-
Parkimiskoht 2
-
Ehitusaasta 2017
-
Tüüp Korter
-
Staatus Arhiiv
-
Küte keskküte
-
Pliit elektripliit
-
Korrus 4
-
Korruseid 5
-
Hoone materjal Kivimaja
-
Omandivorm Korteriomand
Aadress
Ava Google Maps-
Aadress: 12/1, Heki tee, Haabneeme alevik, Viimsi vald, Harju maakond, 74001, Eesti
-
Linn: Haabneeme
-
Maakond: Harju maakond
-
Postiindeks: 74001
-
Riik: Eesti
360° Virtuaaltuur
Kirjeldus
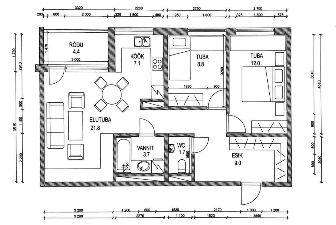
KORTER
Müüa avar ja valgusküllane 3 toaline korter. Korter asub maja keskel 5-korruselise maja 4.korrusel.
Korteri koosseisu kuuluvad: esik, elutuba avatud köögiga, 2 magamistuba, vannituba, wc ja rõdu.
Üldpind kokku on 68,5m2. Korteri elamispind on 64,1m2 ning lisaks rõdu 4,4m2.
2 parkimiskohta ja panipaik 3m2 on ka hinna sees.
KORTERISSE JÄÄB
Köök: köögimööbel, külmkapp, pliit, ahi, nõudepesumasin, mikrolaineahi ja kubu.
Elutuba: tv alus, laud ja toolid.
1 magamistuba: laud ja teler.
2 magamistuba: lastemööbel (kokkuleppel).
Vannituba: pesumasin.
Esik: sisseehitatud riidekapp.
Video
Energiamärgis
-
Energiamärgis: C
- A
- B
- | Energy class CC
- D
- E
- F
- G
- H
